135-3014-4408盛荟花园
山景地产
期房
楼盘详情

盛荟花园:盛荟花园地处惠州大亚湾经济技术开发区城市干道中兴中路东侧,东临中兴五路,北临中兴北路,南临规划道路,西南面为大亚湾区政府广场。该地块为较规整的方形,南北长约340米,东西长约350米。盛荟花园地块属于商住用地,总用地面积95808.96平方米,容积率为2.8,总建筑面积约316005.32平方米,小区内规划设计14栋层数为20~32层不等的住宅。
项目定位: 住宅、高层、综合体
首期入住:2016年6月1日
绿化率:30%
产权:70年
容积率:2.8
装修状况:毛坯
总占地面积:95808.96m²
物业公司T:惠州德美南物业管理有限公司
楼盘特色:不限购
开发商: 惠州市大亚湾德丰投资发展有限公司
开发商: 惠州市大亚湾德丰投资发展有限公司
小区效果

小区园林

小区园林

小区园林

小区正门
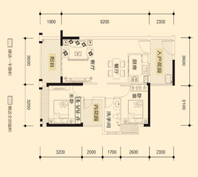
户型图

F2户型平面图
三房两厅一厨一卫/建筑面积:94.71m²

F3户型平面图
三房两厅一厨两卫/建筑面积:115.60m²
项目配套

红树林公园

惠亚医院

滨海公园

沃尔玛
【购物】沃尔玛、华润超市、人人购物广场、澳头海鲜市场、时尚岛综合商业中心
【学校】澳头中心幼儿园、黄鱼涌小学、澳头第一小学、澳头中学、育英学校
【医院】中山大学附属第一医院、大亚湾人民医院
【商务】丰华商务大厦、大亚湾假日酒店、中海酒店
【银行】中国建设银行澳头支行、中国农业银行澳头分理处、中国建设银行大亚湾支行、中国农业银行大亚湾支行、广发银行大亚湾支行
【内部配套】商业街、游泳池、幼儿园、商业会所、酒店等











